主页 > 产品世界 > 双梁桥式起重机 >
 
产品简介
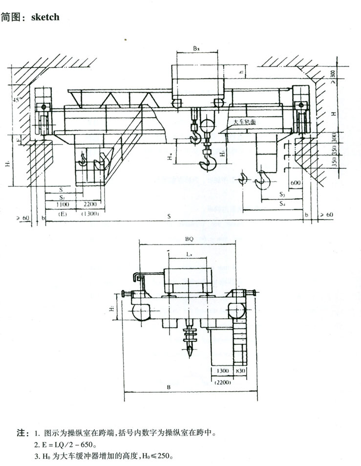
  绝缘吊钩桥式起重机,适用于冶炼铝、镁等电解有色金属设备的工厂。
  本起重机由箱形桥架、大车运行机构、小车、电气设备四部分构成。为了防止在工作过程中,带电设备上 的电流可能通过被吊运的构件传到起重机上,危及司机的生命安全,故在起重机的适当部位设备上几道绝 缘装置。 
  本起重机均为重级工作制度,为确保起吊安全,起升机构备有双制动器


 
版权:四川新盛华起重机有限公司版权所有 地址:成都市双流九龙工业港九鹏大道 备案:1400979 电话: 座机:87660658 87658198、86476083 邮编:610000 传真:028-86476083